Specification & Floorplans
Special warehouses designed for now, tomorrow, and well into the future
Designed for efficiency, made to be future-proof SEGRO Park Enfield offers space that’s tailor made to your business, with a host of features and considerations that optimise day-to-day operations.
Boasting electric car chargers for EV fleets, 12m eaves heights that provide more racking options, large yard depths and enhanced access options throughout. All to make sure that your business runs efficiently in a space that can accommodate not only your needs today, but future demands as well.
Units 3 at SEGRO Park Enfield
______________________________________________________________________________________________________________________________________________________________________
Special is in the detail
Each unit at SEGRO Park Enfield has been designed and built to ensure your business can operate with maximum ease and efficiency.
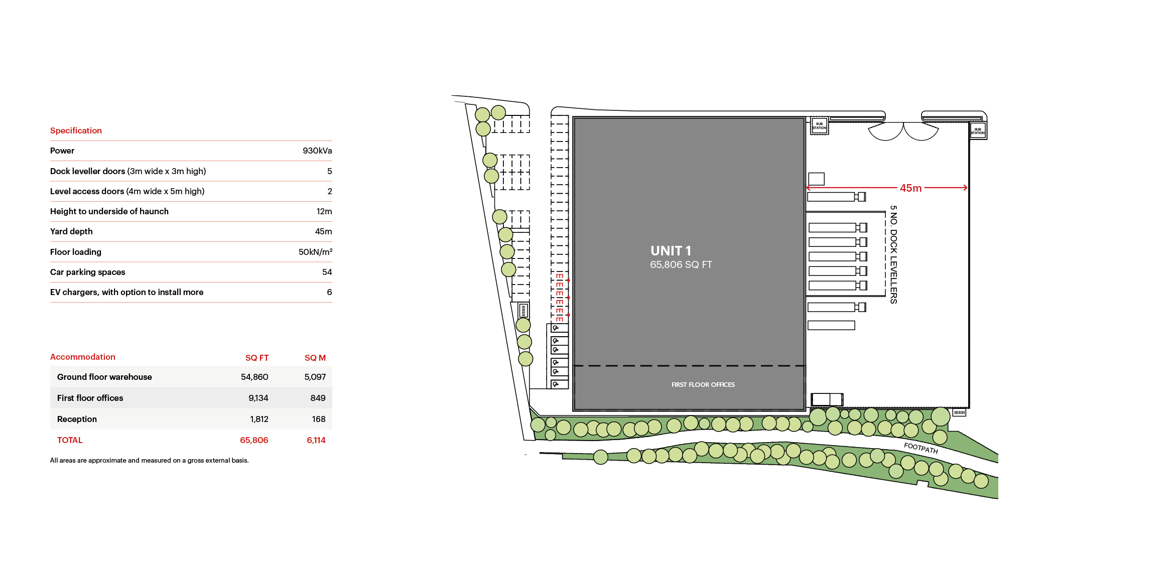
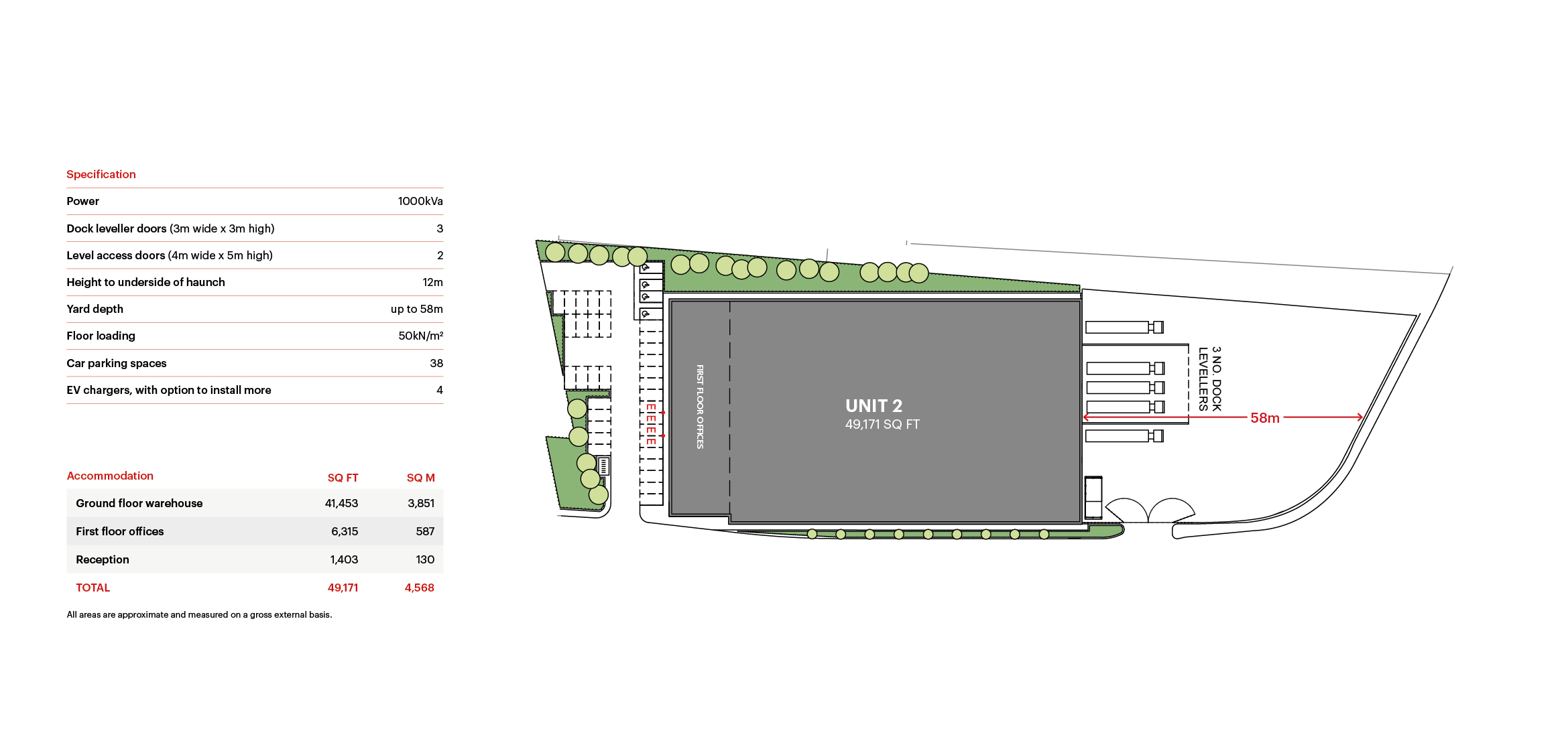
Specification
- 45-64m yard depths
- 50 kN/m2 floor loading
- Secure gated yards with CCTV
- 12m eaves height
- Flexibility to install mezzanines and high bay racking
- EPC 'A+' rating & BREEAM 'Excellent'
- EV chargers
- Ample car parking per unit
- Solar panels
- Curved ‘Twin Therm’ roofing
- Landscaped outdoor spaces
- Fully-fitted offices with comfort cooling / heating
- Ample natural light
- 1x 8-person lift to the main offices in each unit
- Cycle shelters and showers
Site Plan
SEGRO Park Enfield | Site plan



Virtual Tour
Step inside this industrial & logistics development and explore all it has to offer
Find out moreSustainability
Equipped with the latest advances in sustainability to drive energy efficiencies.
Find out more