Plans & visite virtuelle
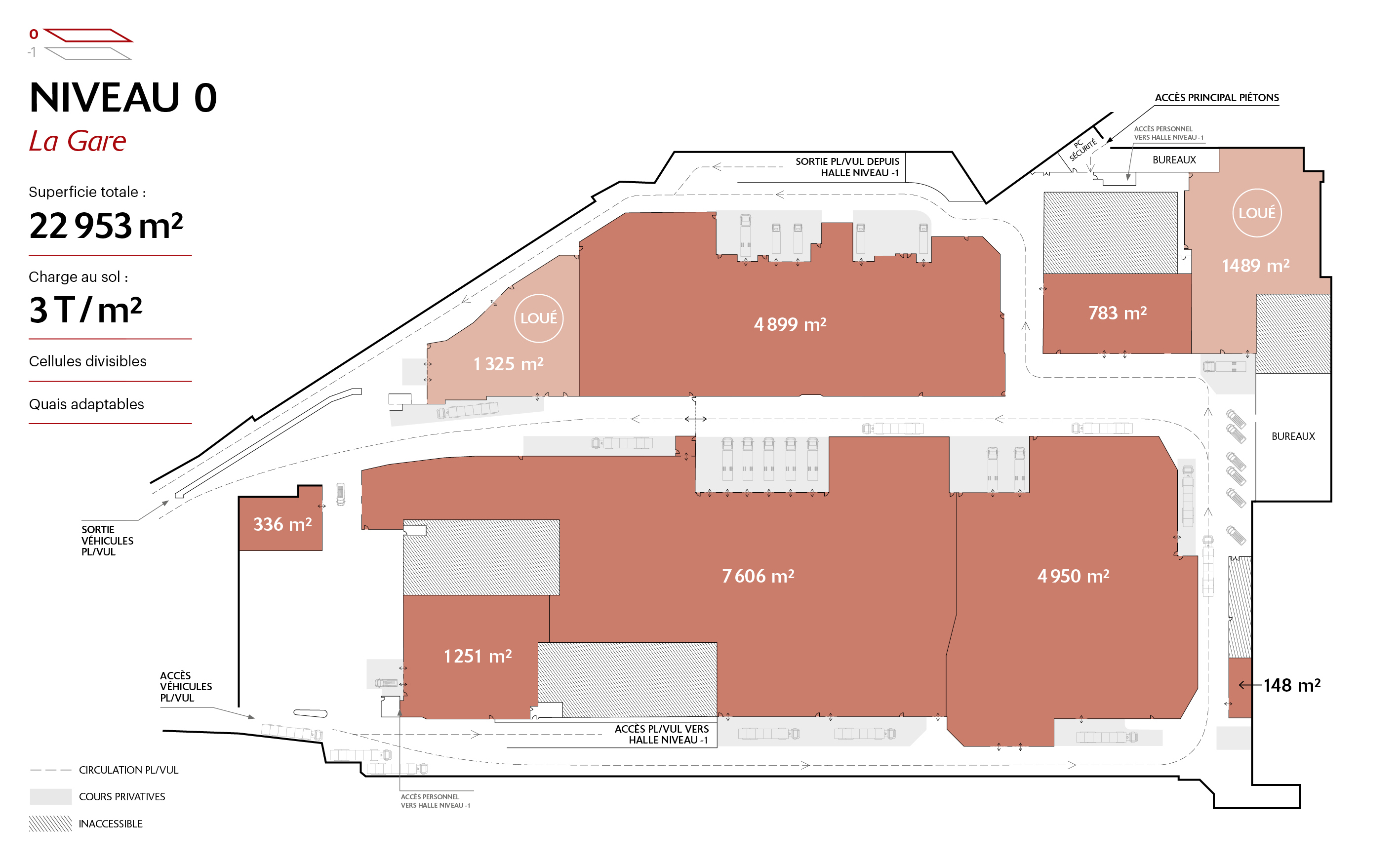
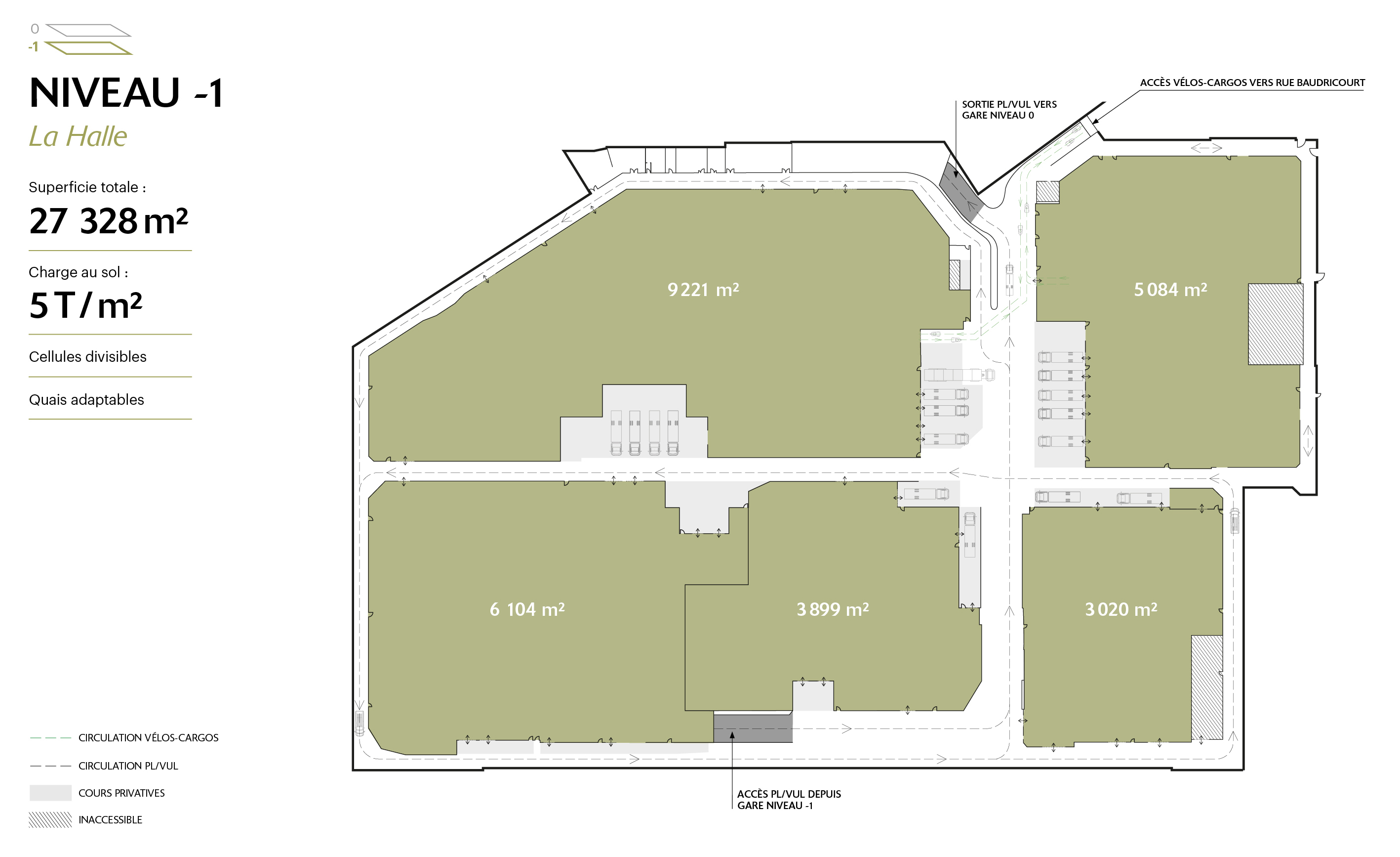
DES VOLUMES POUR TOUTES LES AMBITIONS
Les espaces modulables du SEGRO Centre Paris Les Gobelins offrent une grande flexibilité, avec des surfaces allant d'environ 700 m² à 14 000 m² au niveau 0 ainsi qu'au niveau -1.
Disponibilité immédiate.


PLONGEZ AU CŒUR DU SEGRO CENTRE PARIS LES GOBELINS GRÂCE À NOTRE VISITE VIRTUELLE IMMERSIVE
Découvrez une sélection de cellules au sein de cette plateforme logistique de nouvelle génération, à travers une expérience interactive inédite.
Explorez des aménagements virtuels illustrant différents scénarios d’exploitation – cross-dock, stockage, activité – et projetez-vous dans des espaces modernes, pensés pour la performance et la flexibilité.
Disponible immédiatement.